Unit 22, 14 Alberon Street, Wishart, QLD
14 Photos
New
14 Photos
+10
For Sale
$420,000
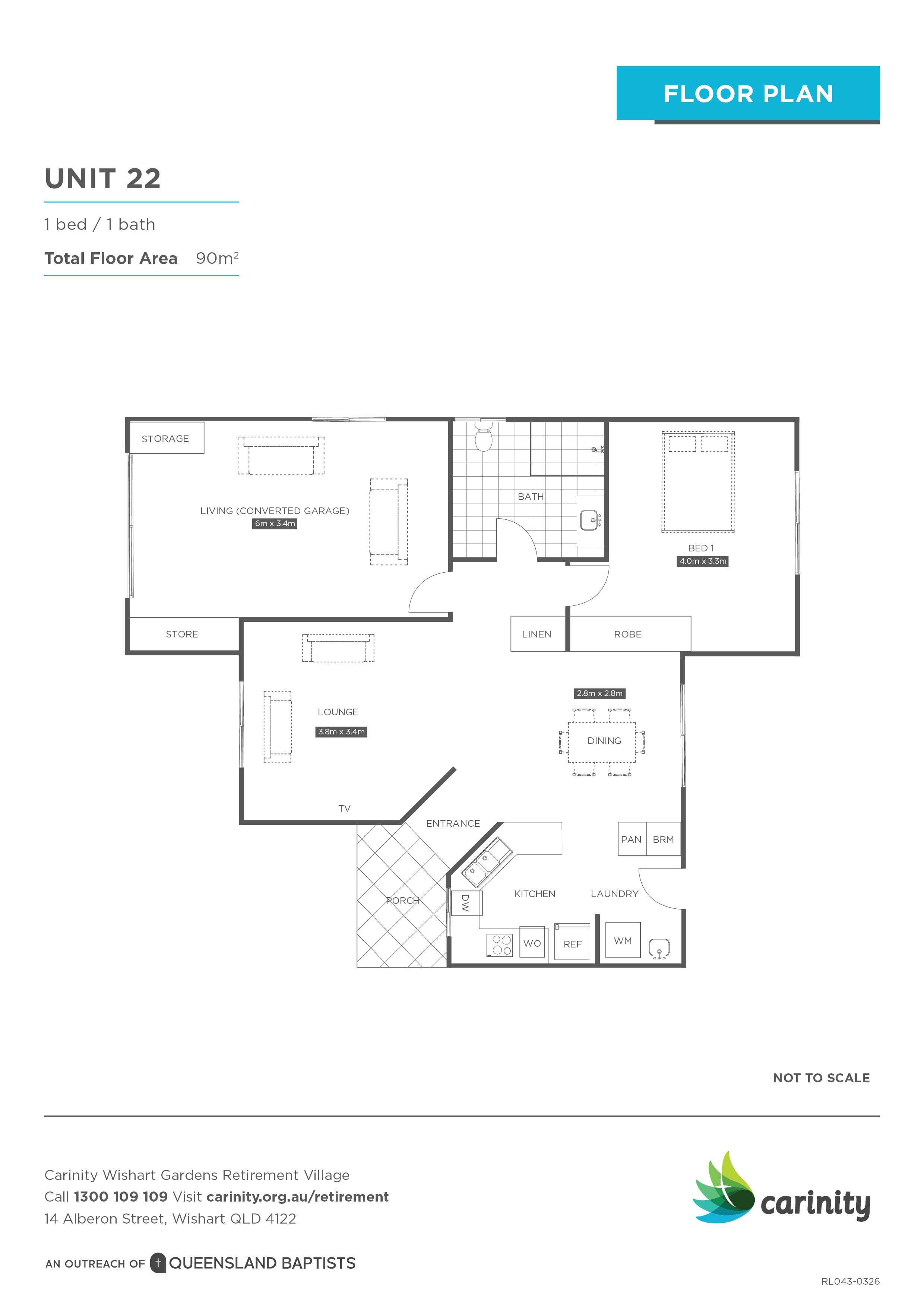
1
1
–
90m2
retirement_living
Contact
buymyplace on +61 488 842 044
Find out rates and fees
Enquire price information
* Make an offer only available on sales listings
For Sale
$420,000
1
1
–
90m2
retirement_living
Contact
buymyplace on +61 488 842 044
Find out rates and fees
Enquire price information
* Make an offer only available on sales listings
Hassle-free retirement living
Property ID: 234930
Welcome home to Carinity Wishart Gardens, a centrally located retirement village with tranquil surrounds.
This self-contained villa features a modern layout for easy living, a stylish kitchen with high-quality fittings and an integrated laundry.
There is one light-filled bedroom with built in wardrobe, a wide-access bathroom and a second living area that could easily be converted back to a lock-up garage if desired. Additionally, there is a 24-hour emergency response system for peace of mind, plus air conditioning and ceiling fans for year-round comfort.
Wishart Gardens is a beautiful and secure community that has been designed for seniors to enjoy peace, quiet and privacy. You have the freedom to tinker in your garden or relax and let the dedicated maintenance staff handle the yard for you.
A community hall and library, ample visitor parking, wide roads and walking tracks through spacious leafy gardens are all yours to enjoy. There is a bus stop conveniently located nearby, with routes that connect with Mount Gravatt Bus Depot and Brisbane City.
Contact Mandy Weber today to book your private inspection!
Please note, the sale price is an ingoing contribution under the Queensland Retirement Villages Act 1999. Ongoing general services and maintenance charges apply.
This self-contained villa features a modern layout for easy living, a stylish kitchen with high-quality fittings and an integrated laundry.
There is one light-filled bedroom with built in wardrobe, a wide-access bathroom and a second living area that could easily be converted back to a lock-up garage if desired. Additionally, there is a 24-hour emergency response system for peace of mind, plus air conditioning and ceiling fans for year-round comfort.
Wishart Gardens is a beautiful and secure community that has been designed for seniors to enjoy peace, quiet and privacy. You have the freedom to tinker in your garden or relax and let the dedicated maintenance staff handle the yard for you.
A community hall and library, ample visitor parking, wide roads and walking tracks through spacious leafy gardens are all yours to enjoy. There is a bus stop conveniently located nearby, with routes that connect with Mount Gravatt Bus Depot and Brisbane City.
Contact Mandy Weber today to book your private inspection!
Please note, the sale price is an ingoing contribution under the Queensland Retirement Villages Act 1999. Ongoing general services and maintenance charges apply.
Features
Outdoor features
Outdoor area
Indoor features
Dishwasher
Built-in robes
Living area
Air conditioning
Email enquiry to buymyplace
For real estate agents
Please note that you are in breach of Privacy Laws and the Terms and Conditions of Usage of our site, if you contact a buymyplace Vendor with the intention to solicit business i.e. You cannot contact any of our advertisers other than with the intention to purchase their property. If you contact an advertiser with any other purposes, you are also in breach of The SPAM and Privacy Act where you are "Soliciting business from online information produced for another intended purpose". If you believe you have a buyer for our vendor, we kindly request that you direct your buyer to the buymyplace.com.au website or refer them through buymyplace.com.au by calling 1300 003 726. Please note, our vendors are aware that they do not need to, nor should they, sign any real estate agent contracts in the promise that they will be introduced to a buyer. (Terms & Conditions).



