Unit 9, 5353 Princes Highway, Traralgon, VIC
13 Photos
Sold
13 Photos
+9
‘Rosella Hutte’ – Space, style and relaxation
Property ID: 228522
FOR OPEN HOMES:
Please call into office at Park Lane BIG4 Caravan Park Traralgon (5353 Princes Highway) and they will give you a map on where to go.
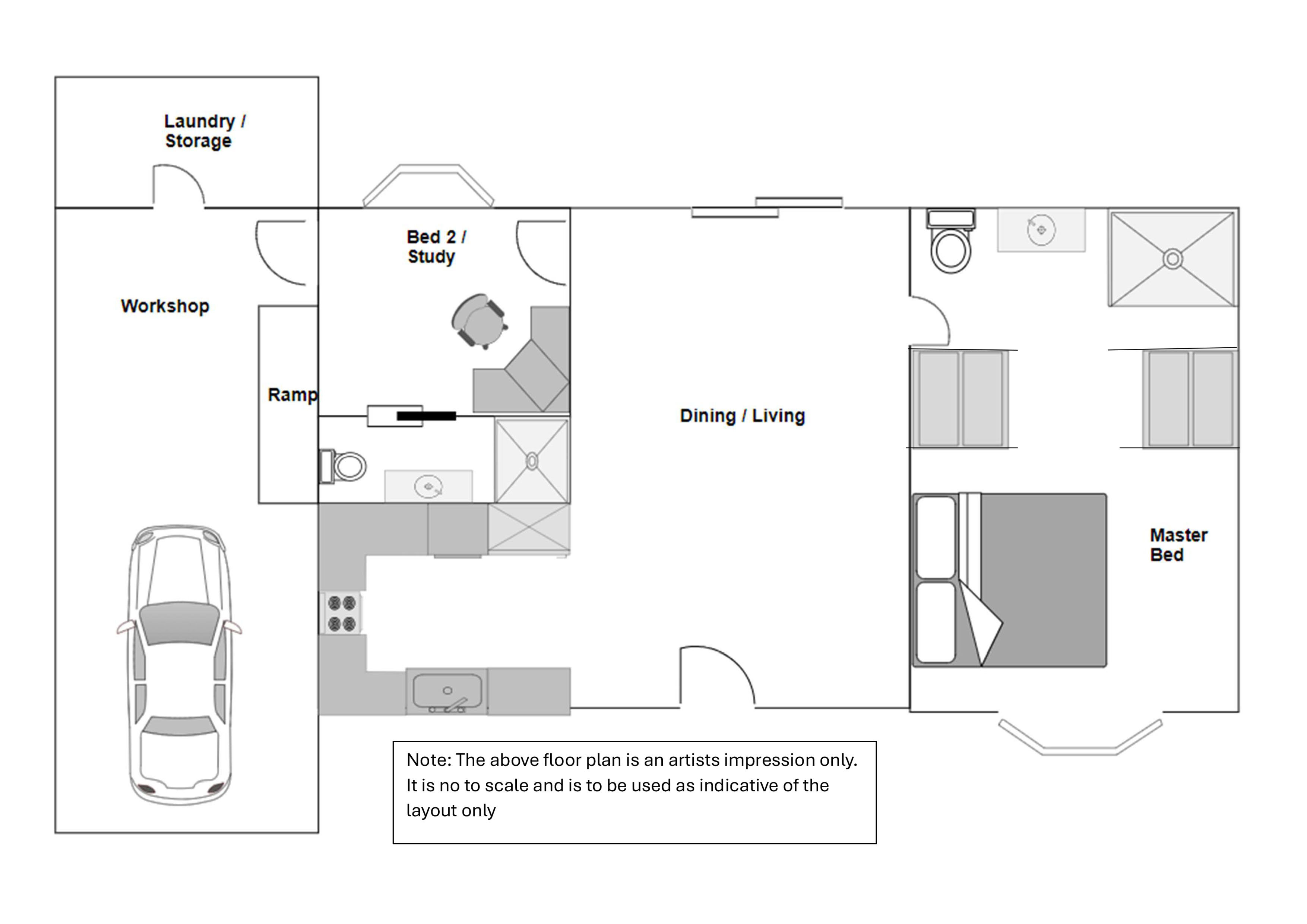
If you are looking to downsize but really don’t want to compromise on size, The ‘Rosella Hutte’ might just be the home for you. Located in our Traralgon West over 55’s lifestyle village on site 9, this home has 2 bedrooms, 2 bathrooms, a great size kitchen, a garage with workshop + SOLAR.
The home has a lovely presence from the moment you drive up with a bullnose veranda, easy care gardens plus a drive in garage, offering internal access.
The front door opens into the large living area (approx 6m x 7m) and there is a good sized kitchen to the left, boasting lots of storage and counter space, pantry and dishwasher, ample size for a large fridge and electric oven & cooktop.
The king sized master bedroom is accessed via a spacious ensuite bathroom (with large easy access shower) and a walk through wardrobe. The bay window has manual exterior ultra shutters.
The 2nd bedroom is situated on the other side of the living area, and has previously been set up as a study but could just as easily be a craft room/visitors room, and has its own ensuite.
The garage has a remote door, good sized workshop and to the rear a separate laundry, which opens to the rear enclosed courtyard perfect for a pet. Solar is affixed on the north side of the roof.
Please note: New carpet and vinyl is being laid in the kitchen, living and 2nd bedroom in the next week or so, so that will only add to the presentation of this home.
Park Lane Living Traralgon West has a private village entrance, community hall and gym plus shared facilities such as an outdoor swimming pool, indoor spa and and indoor play centre for the grandchildren.
Onsite management and pets are welcome.
For more information or to book a private inspection, please contact our home sales consultant Donna via 1300 300 425 or [email protected]
Note: This home is classed as a UMD (Unregistrable Movable Dwelling) and weekly site fees apply. Please enquire for more information.
Interior Features
Please call into office at Park Lane BIG4 Caravan Park Traralgon (5353 Princes Highway) and they will give you a map on where to go.
If you are looking to downsize but really don’t want to compromise on size, The ‘Rosella Hutte’ might just be the home for you. Located in our Traralgon West over 55’s lifestyle village on site 9, this home has 2 bedrooms, 2 bathrooms, a great size kitchen, a garage with workshop + SOLAR.
The home has a lovely presence from the moment you drive up with a bullnose veranda, easy care gardens plus a drive in garage, offering internal access.
The front door opens into the large living area (approx 6m x 7m) and there is a good sized kitchen to the left, boasting lots of storage and counter space, pantry and dishwasher, ample size for a large fridge and electric oven & cooktop.
The king sized master bedroom is accessed via a spacious ensuite bathroom (with large easy access shower) and a walk through wardrobe. The bay window has manual exterior ultra shutters.
The 2nd bedroom is situated on the other side of the living area, and has previously been set up as a study but could just as easily be a craft room/visitors room, and has its own ensuite.
The garage has a remote door, good sized workshop and to the rear a separate laundry, which opens to the rear enclosed courtyard perfect for a pet. Solar is affixed on the north side of the roof.
Please note: New carpet and vinyl is being laid in the kitchen, living and 2nd bedroom in the next week or so, so that will only add to the presentation of this home.
Park Lane Living Traralgon West has a private village entrance, community hall and gym plus shared facilities such as an outdoor swimming pool, indoor spa and and indoor play centre for the grandchildren.
Onsite management and pets are welcome.
For more information or to book a private inspection, please contact our home sales consultant Donna via 1300 300 425 or [email protected]
Note: This home is classed as a UMD (Unregistrable Movable Dwelling) and weekly site fees apply. Please enquire for more information.
Interior Features
Features
Outdoor features
Swimming pool
Garage
Outdoor area
Deck
Fully fenced
Open spaces
Secure parking
Indoor features
Dishwasher
Built-in robes
Gym
Workshop
Air conditioning
Heating
Hot water service
For real estate agents
Please note that you are in breach of Privacy Laws and the Terms and Conditions of Usage of our site, if you contact a buymyplace Vendor with the intention to solicit business i.e. You cannot contact any of our advertisers other than with the intention to purchase their property. If you contact an advertiser with any other purposes, you are also in breach of The SPAM and Privacy Act where you are "Soliciting business from online information produced for another intended purpose". If you believe you have a buyer for our vendor, we kindly request that you direct your buyer to the buymyplace.com.au website or refer them through buymyplace.com.au by calling 1300 003 726. Please note, our vendors are aware that they do not need to, nor should they, sign any real estate agent contracts in the promise that they will be introduced to a buyer. (Terms & Conditions).



