Unit 83, 245 Graham Street, Wonthaggi, VIC
13 Photos
Sold

13 Photos

+9
Indoor Outdoor Living at its finest - 2 bed 2 toilets + secure parking
Property ID: 231095
Located in our Over 55's Village in Wonthaggi, this stunning pre-loved home (approx 1 year old) has unexpectedly come up for sale and it’s a beauty.
In pristine condition, the home sits proudly elevated to the front with a level walkout to the rear and includes a fantastic indoor / outdoor room and garden.
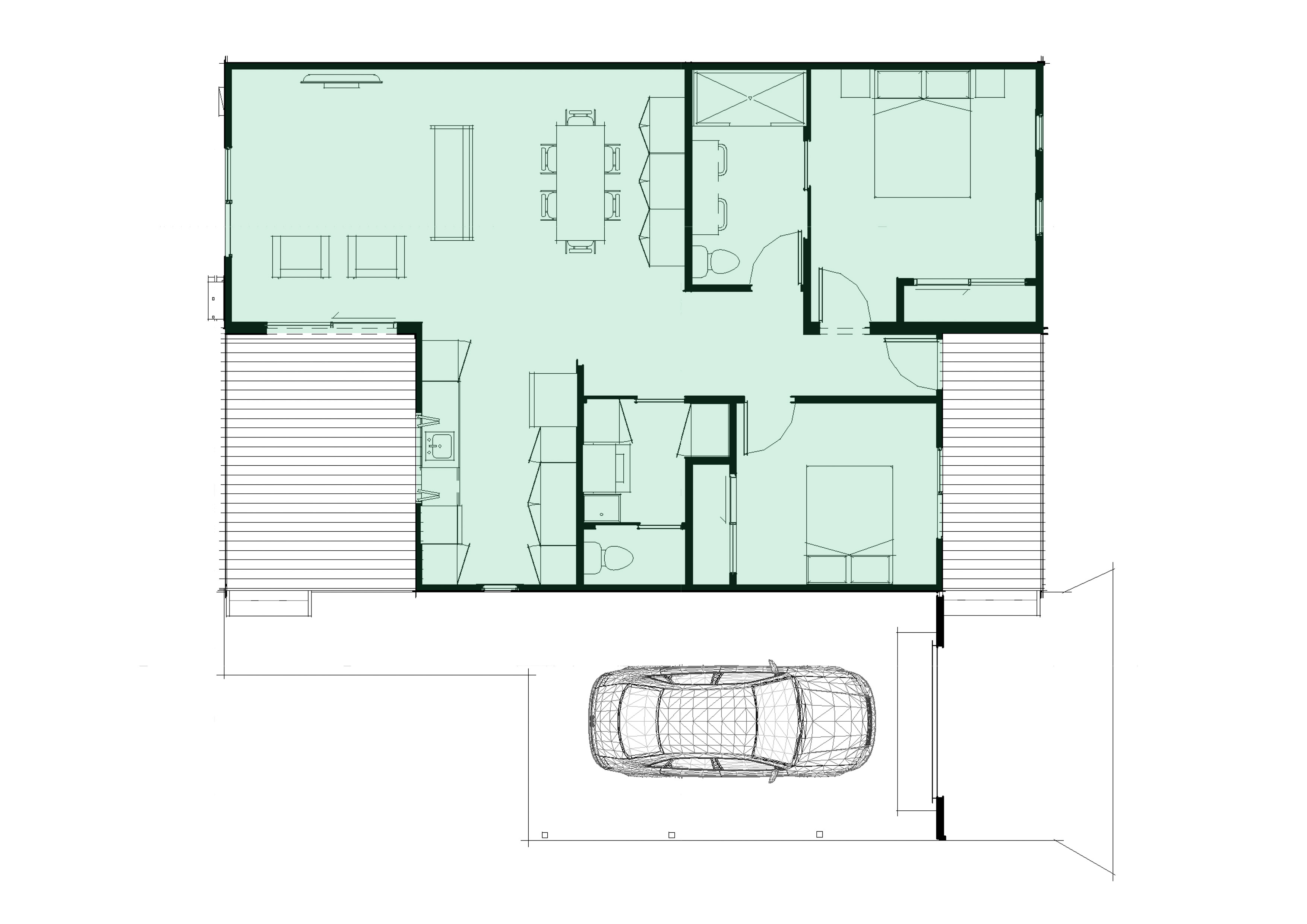
This home is our ‘Hepburn’ design it features 2 good sized bedrooms, 2 toilets and a great sized open plan dining / living area, with a galley kitchen opening to the alfresco room.
Property features and upgrades:
2 good sized bedrooms, master with an ensuite
Separate laundry with ample storage
Additional toilet
Upgraded kitchen – wall oven / additional drawers
Day / Night blinds to bedrooms
Built in robes
Reverse cycle air conditioning
Alfresco area with plantation type shutters and door
Garage door with remote
Available for purchase now with a quick move in date.
Call me, Donna, for a viewing.
Note: This home is classed as a UMD (Unregistrable Movable Dwelling) and weekly site fees apply. Please enquire for more information.
The floorplan is the mirror image of the one attached.
In pristine condition, the home sits proudly elevated to the front with a level walkout to the rear and includes a fantastic indoor / outdoor room and garden.
This home is our ‘Hepburn’ design it features 2 good sized bedrooms, 2 toilets and a great sized open plan dining / living area, with a galley kitchen opening to the alfresco room.
Property features and upgrades:
2 good sized bedrooms, master with an ensuite
Separate laundry with ample storage
Additional toilet
Upgraded kitchen – wall oven / additional drawers
Day / Night blinds to bedrooms
Built in robes
Reverse cycle air conditioning
Alfresco area with plantation type shutters and door
Garage door with remote
Available for purchase now with a quick move in date.
Call me, Donna, for a viewing.
Note: This home is classed as a UMD (Unregistrable Movable Dwelling) and weekly site fees apply. Please enquire for more information.
The floorplan is the mirror image of the one attached.
Features
Outdoor features
Swimming pool
Outdoor area
Deck
Fully fenced
Open spaces
Carport
Secure parking
Indoor features
Ensuite
Dishwasher
Built-in robes
Living area
Toilet
Air conditioning
Heating
For real estate agents
Please note that you are in breach of Privacy Laws and the Terms and Conditions of Usage of our site, if you contact a buymyplace Vendor with the intention to solicit business i.e. You cannot contact any of our advertisers other than with the intention to purchase their property. If you contact an advertiser with any other purposes, you are also in breach of The SPAM and Privacy Act where you are "Soliciting business from online information produced for another intended purpose". If you believe you have a buyer for our vendor, we kindly request that you direct your buyer to the buymyplace.com.au website or refer them through buymyplace.com.au by calling 1300 003 726. Please note, our vendors are aware that they do not need to, nor should they, sign any real estate agent contracts in the promise that they will be introduced to a buyer. (Terms & Conditions).












